Mergi la conţinutul principal

Parchetul de pe lângă Tribunalul Brăila. Demersuri pentru un nou sediu

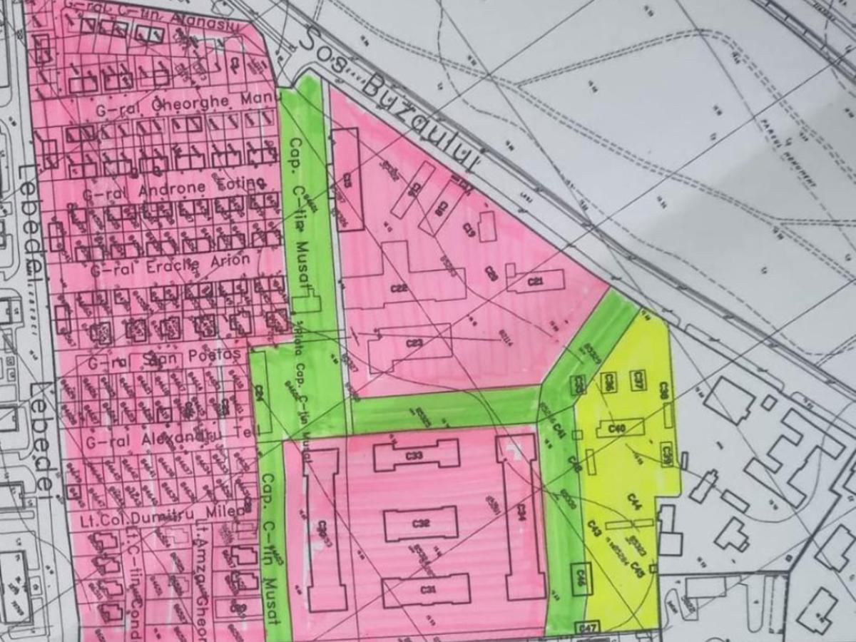
• consilierii municipali au aprobat, recent, o hotărâre de trecere a unui teren de 7.002 mp din domeniul public al Municipiului Brăila în cel al statului, pentru a fi dat, ulterior, în administrarea Parchetului de pe lângă Tribunalul Brăila • este vorba despre Calea Călărașilor nr. 220, fosta cazarmă militară 493 din zona statuii Caporalului Mușat • demersul a pornit de la conducerea Parchetului, care plecând de la faptul că are nevoie de un nou sediu, cel actual fiind mult prea aglomerat, a solicitat Primăriei Brăila să identifice un teren unde acesta să poată fi construit

 

Parchetul de pe lângă Tribunalul Brăila ar putea funcționa pe viitor în zona de la statuia Caporal Mușat. Momentan este vorba despre un demers administrativ, însă deja s-au făcut primii pași în acest sens. Mai precis, consilierii municipali au aprobat în cadrul celei mai recente ședințe ordinare a CLM Brăila, un proiect prin care și-au exprimat acordul privind transmiterea spațiului unde ar urma să se construiască un nou sediu pentru Parchetul de pe lângă Tribunalul Brăila, din domeniul public al Municipiului Brăila în domeniul public al statului. Un teren de 7.002 mp, situat pe Calea Călărașilor nr. 2020 (lot 1, lot2/1/53)/2, unde activa în trecut cazarma militară 493 din zona statuii Caporalului Mușat.

Din raportul de specialitate reiese că totul a pornit în urma demersurilor efectuate de conducerea Parchetului de pe lângă Tribunalul Brăila, care a solicitat Primăriei să identifice și să analizeze oportunitatea de a transmite un teren intravilan din domeniul public în cel al statului și administrarea Ministerului Public – Parchetul de pe lângă Tribunalul Brăila. Solicitarea a venit pentru a putea fi demarate procedurile legale pentru construirea unui sediu adecvat.

Astfel, în martie 2024, municipalitatea a comunicat printr-o adresă oficială, faptul că își dă acordul de principiu pentru transmiterea terenului de pe Calea Călărașilor nr. 220. Mai departe, în luna aprilie a fost aprobată o hotărâre de CLM de trecere din domeniul privat în domeniul public al Municipiului Brăila a acestui teren de 7.002 mp.

Aceeași sursă informează că pe 19 iulie, Secretariatul General al Guvernului a transmis o adresă Primăriei Municipiului Brăila, prin care a solicitat adoptarea unei hotărâri de CLM privind trecerea acestui teren din domeniul public al Municipalității în cel al statului, iar municipalitatea s-a conformat.

 

Motivele invocate pentru construirea unui nou sediu

După cum se specifică în adresa transmisă de Guvernul României către municipalitate, prin care s-a solicitat transferul spațiului respectiv, Parchetul de pe lângă Tribunalul Brăila și Parchetul de pe lângă Judecătoria Brăila funcționează (împreună cu Tribunalul Brăila și Judecătoria Brăila) într-un imobil construit în perioada 1978-1983, pe un teren dat în administrare Tribunalului Brăila. Investiție realizată de către Ministerul Justiției. Aceeași sursă menționează că odată cu intrarea în vigoare a noilor coduri (penal, civil, de procedură penală și de procedură civilă), spațiul ocupat în prezent de toate aceste instituții a devenit insuficient. Chestiune valabilă atât pentru Parchetul de pe lângă Tribunalul Brăila și Parchetul de pe lângă Judecătoria Brăila, cât și pentru Tribunalul Brăila și Judecătoria Brăila.

Potrivit unor surse administrative, municipalitatea a înaintat hotărârea către Guvernul României de predare a terenului și urmează ca Executivul să aprobe la rândul său transferul. Mai departe, vor putea fi demarate procedurile privind construcția efectivă a sediului.

Aceleași surse ne-au precizat că spațiul respectiv este liber, fără clădiri ce ar necesita să fie dărmate. Trebuie precizat și că în zonă mai rămân două loturi de teren care încă aparțin municipalității.

Reamintim că în trecut în zona respectivă s-a dorit realizarea unui complex economic și o modernizare a zonei. Proiectul a fost licitat și câștigat de societatea ”APAN”, însă proiectul s-a blocat ulterior, ani de zile nerealizându-se nimic acolo, în afară de distrugerea unora dintre clădirile fostei cazărmi. Ulterior, Primăria a încercat reluarea licitației, a câștigat SC Tragicons Trans SRL, care ulterior s-a răzgândit și nu a mai semnat contractul de superficie.

 

 


Invităm cititorii la dialog civilizat şi constructiv, bazat pe respect faţă de autori sau alţi cititori. Mesajele care conţin cuvinte obscene, anunţuri publicitare, atacuri la persoană, trivialităţi, jigniri, ameninţări şi cele vulgare, xenofobe sau rasiste sunt interzise de legislaţia în vigoare. Aceste tipuri de comentarii vor fi şterse de către moderatori şi pot duce până la blocarea accesului la a mai posta comentarii pe obiectivbr.ro. Totodată, autorul comentariului îsi asuma eventualele daune, în cazul unor actiuni legale împotriva celor publicate. Pentru a avea acces la comentarii si a putea comenta trebuie sa fiti logati in disqus.com / facebook.com / google.com / twitter.com in browserul in care accesati site-ul nostru.


 

• Director general: Monica Paraschiv

• Director: Silvia Preda

• Şef departament publicitate: Sorin Preda

• Redactor Şef: Florentin Coman

• Redactor Şef Adjunct: Ionuţ Condoliu

  • Adresa: Brăila, Str. Mihai Eminescu, nr. 56, etaj 2
  • Telefon: 0740-080289
  • E-mail: redactie@obiectivbr.ro